Skip to content
Home
Demo 1
Demo 2
Demo 3
Demo 4
Demo 5
Demo 6
Demo 7
Demo 8
Demo 9
Demo 10
Demo 11
Demo 12
Demo 13
Demo 14
Demo 15
Demo 16
Demo 17
Demo 18
Demo 19
Demo 20
Demo 21
Demo 22
Demo 23
Demo 24
Demo 25
Demo 26
Demo 27
Features
Pages
About Us
Core Features
Pricing Page #1
Blog Listing
Our Team
Our Projects
Pricing Pgae #2
Single Blog Post
Careers
FAQs Page
Project Details
Login Page
Career Details
Testimonials
Help Center
Signup Page
Contact Us
Download Page
404 Page
Integrations Page
Pricing
Shop
Subscribe
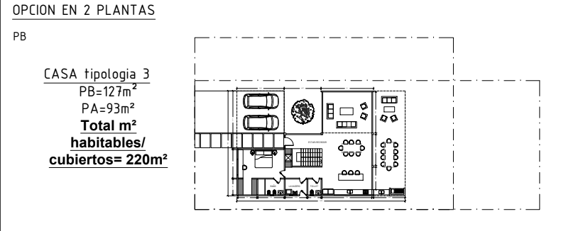
Casa Ingá – 220m²
Planos y estilos
La casa que queres, en las condiciones que necesitás. Así de fácil.
Productos relacionados
Casa CEDRO 220 m²
Anchico – Dos Plantas
✕